LoginSubscribe to Alerts

3 bedroom home in Cleckheaton

Do you want to get more information from Harron Homes

Merchant Fields by Harron Homes

Merchant Fields   Plot 114   Harron Homes

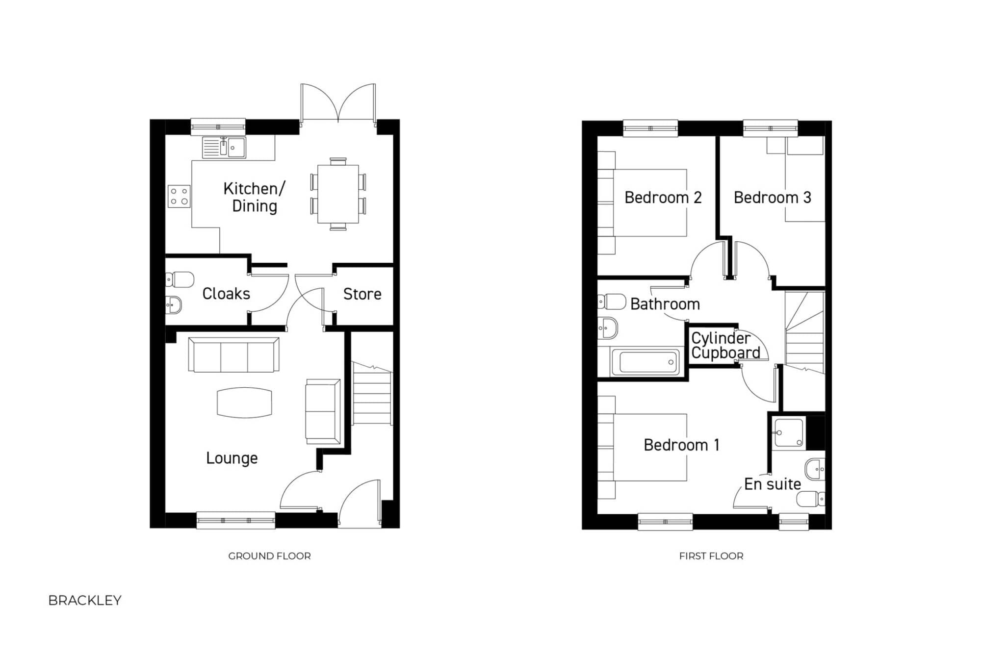
The Brackley is a stylish and spacious three bedroom semi-detached home is perfect for growing families and couples alike.

  • The light and airy living room is the perfect space to unwind, while at the heart of the property is an impressive, high specification kitchen with dining area, ideal for sitting down together to share a meal. This spacious open plan room features stylish French doors which open out onto the garden, creating the perfect space to enjoy the warmer summer months. The property also includes a downstairs WC and extra storage space.

    The upstairs landing leads to the generously sized master bedroom, complete with stylish en-suite shower room, and a further two bedrooms ideal for a growing family or overnight guests. A modern yet elegant family bathroom completes the first floor of this fabulous home.

    Read Less

Property Features

  • 3 bedroom semi-detached home perfect for couples and growing families
  • Open plan kitchen and dining area with French doors to the garden, a perfect space for family dinners
  • Master bedroom complete with a private en-suite
  • A further two bedrooms and spacious, stylish family bathroom
  • NHBC 10 year warranty giving you peace of mind

Quick mortgage affordability calculator

Tembo is an award-winning mortgage broker
Voted the UK’s Best Mortgage Broker by its customers in 2022 and 2023, Tembo is helping buyers discover their true mortgage affordability.

Tembo boosts its average customer’s maximum budget by £82,000. They do this by not only checking your affordability for over 100 lenders and standard products, but also for a range of budget-boosting specialist schemes.

Schemes include:
Ways for family to support using income, property or savings 
Private part buy part rent & government shared ownership 
Professional mortgages and 5.5x borrowing schemes
Sharia compliant home purchase plans
& so much more

Discover what your budget could be using our simple calculator, and afterwards access personalised interest rates through their full fact-find.

Your home may be repossessed if you do not keep up payments on your mortgage.

Property Floorplans

Click to expand floorplan image.

Other properties on this development

List Sort: 
Merchant Fields   Plot 207   Harron Homes
4 bedroom home for sale
4 Bedrooms
PART EXCHANGE AVAILABLE
Merchant Fields   Plot 206   Harron Homes
4 bedroom home for sale
4 Bedrooms
KEY WORKER SCHEME WORTH 13,650
Merchant Fields   Plot 205   Harron Homes
4 bedroom home for sale
4 Bedrooms
PART EXCHANGE AVAILABLE
Merchant Fields   Plot 188   Harron Homes
4 bedroom home for sale
4 Bedrooms
PART EXCHANGE AVAILABLE
Merchant Fields   Plot 112   Harron Homes
3 bedroom home for sale
3 Bedrooms
NEW RELEASE
Merchant Fields   Plot 115   Harron Homes
3 bedroom home for sale
3 Bedrooms
The Brackley is a stylish and spacious three bedroom semi-detached home is perfect for growing families and couples alike

Property Information

Price Details:
£300,000
Bedrooms:
3 bedrooms
Development:

Development Location

Individual savings and affordability may vary.

YOUR HOME MAY BE REPOSSESSED IF YOU DO NOT KEEP UP PAYMENTS ON YOUR MORTGAGE.

If you choose to use Tembo for mortgage advice, we may earn a commission from them for the introduction. This does not negatively impact the amount you'll pay for their service.

Tembo Money Limited (12631312) is a company registered in England and Wales with its registered office at 18 Crucifix Lane, London, SE1 3JW. Tembo is authorised and regulated by the Financial Conduct Authority under the registration number 952652.
© 2026 WhatHouse?
Click here to see your activities