LoginSubscribe to Alerts

4 bedroom home in New Rossington

Do you want to get more information from Harron Homes

De Maulay Manor by Harron Homes

De Maulay Manor   Plot 60   Harron Homes

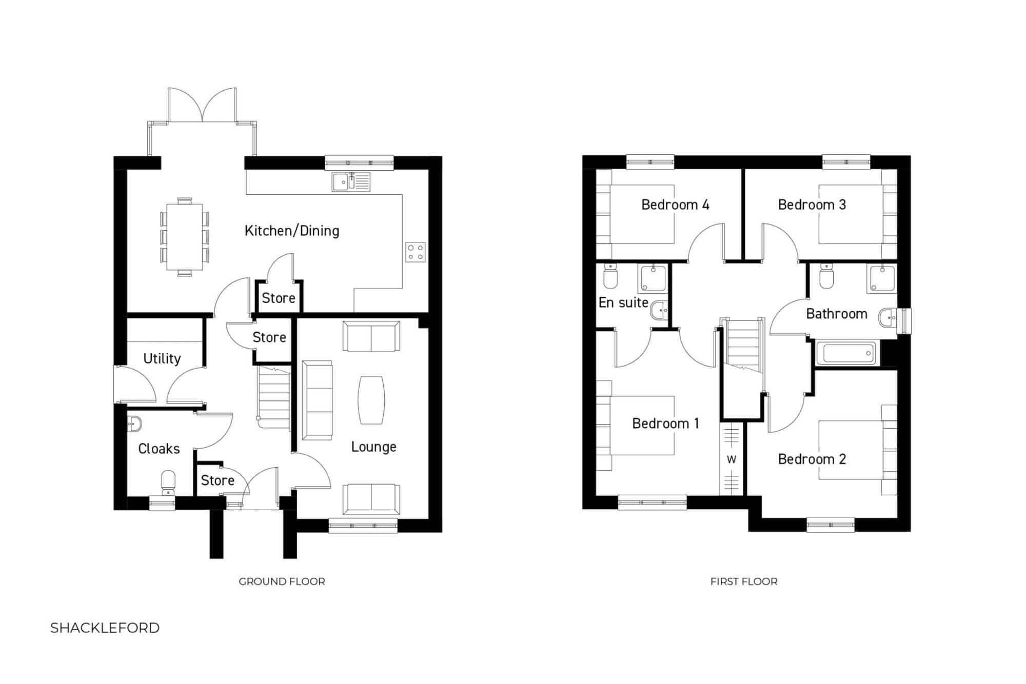
The Shackleford is a stylish, four-bedroom detached property, thoughtfully designed to style with functionality, ensuring it meets a lifetime of evolving needs.

  • Key features include well-placed sockets and switches for ease of use, level access to all entrances for smooth movement throughout, and built-in power and structural provisions for the potential addition of a through-floor lift. The ground floor benefits from a wet room, while upstairs, youll find another wet room and a private en-suite in the main bedroom, offering flexibility for the future.

    The bright and welcoming lounge is perfect for family relaxation, while the modern kitchen, designed to a high specification, features a dining area with classic French doors that open onto the garden, flooding the space with light. A separate utility room adds to the homes practicality.

    Upstairs, the central landing is surrounded by four spacious bedrooms. The main bedroom is a welcome retreat with its own en-suite shower room, while bedroom two comfortably accommodates a double bed. Bedrooms three and four offer versatility, whether as additional bedrooms or home offices.

    With its thoughtful design and future-ready features, the Shackleford is perfect for those seeking a blend of luxury and long-term practicality.

    Read Less

Property Features

  • Spacious detached property with detached garage and driveway space
  • Modern open plan kitchen and dining area with feature French doors leading to garden
  • Utility room with separate WC and access to the driveway
  • Four bedroom home with ensuite in main bedroom
  • Main family bathroom with separate bath and shower
  • NHBC 10 year warranty giving you peace of mind
  • The Harron specification includes leading brands with the latest Bosch kitchen appliances, contemporary Symphony kitchens, Franke kitchen sinks, Hansgrohe taps, Ideal Standard sanitaryware and sleek Hammonds wardrobes. Plus the option to upgrade to state-of-the-art Neff hob and integrated ovens

Quick mortgage affordability calculator

Tembo is an award-winning mortgage broker
Voted the UK’s Best Mortgage Broker by its customers in 2022 and 2023, Tembo is helping buyers discover their true mortgage affordability.

Tembo boosts its average customer’s maximum budget by £82,000. They do this by not only checking your affordability for over 100 lenders and standard products, but also for a range of budget-boosting specialist schemes.

Schemes include:
Ways for family to support using income, property or savings 
Private part buy part rent & government shared ownership 
Professional mortgages and 5.5x borrowing schemes
Sharia compliant home purchase plans
& so much more

Discover what your budget could be using our simple calculator, and afterwards access personalised interest rates through their full fact-find.

Your home may be repossessed if you do not keep up payments on your mortgage.

Property Floorplans

Click to expand floorplan image.

Other properties on this development

List Sort: 
De Maulay Manor   Plot 77   Harron Homes
5 bedroom home for sale
5 Bedrooms
Enter the Tollesbury to find an air of opulence
De Maulay Manor   Plot 78   Harron Homes
5 bedroom home for sale
5 Bedrooms
5 bedroom house in New Rossington The grand, thoughtfully designed five bedroom Banbury comes with integral double garage and ...
De Maulay Manor   Plot 57   Harron Homes
4 bedroom home for sale
4 Bedrooms
4 bedroom house in New Rossington The Shelford will be adored by families, a spacious, four bedroom detached home with integra...
De Maulay Manor   Plot 56   Harron Homes
4 bedroom home for sale
4 Bedrooms
BRAND NEW PRICE WITH PART EXCHANGE AVAILABLE!
De Maulay Manor   Plot 59   Harron Homes
4 bedroom home for sale
4 Bedrooms
NEW RELEASE!
De Maulay Manor   Plot 58   Harron Homes
4 bedroom home for sale
4 Bedrooms
BRAND NEW PRICE WITH PART EXCHANGE AVAILABLE!
De Maulay Manor   Plot 80   Harron Homes
4 bedroom home for sale
4 Bedrooms
NEW RELEASE!

Property Information

Price Details:
£365,000
Bedrooms:
4 bedrooms
Development:

Development Location

Individual savings and affordability may vary.

YOUR HOME MAY BE REPOSSESSED IF YOU DO NOT KEEP UP PAYMENTS ON YOUR MORTGAGE.

If you choose to use Tembo for mortgage advice, we may earn a commission from them for the introduction. This does not negatively impact the amount you'll pay for their service.

Tembo Money Limited (12631312) is a company registered in England and Wales with its registered office at 18 Crucifix Lane, London, SE1 3JW. Tembo is authorised and regulated by the Financial Conduct Authority under the registration number 952652.
© 2026 WhatHouse?
Click here to see your activities