LoginSubscribe to Alerts

4 bedroom home in Retford

Do you want to get more information from Harron Homes

The Brambles by Harron Homes

The Brambles   Plot 170   Harron Homes

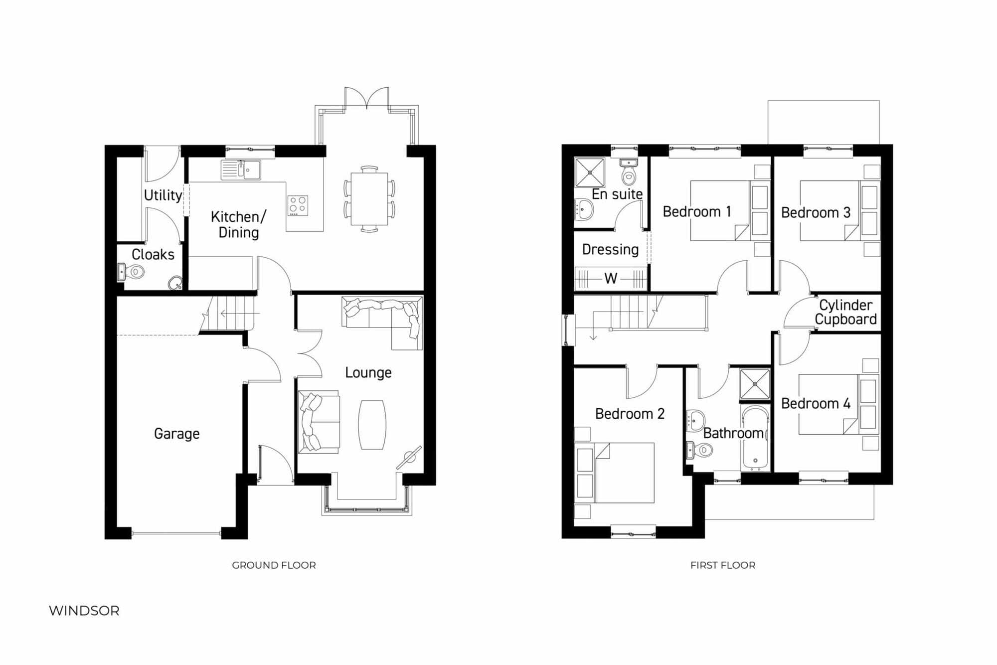
The stylish Windsor, a four bedroom detached home with integral garage offers the best in modern day living for families that want luxury and style.

  • On entering this beautiful property there are stylish double doors that lead into a bright and spacious lounge, making it the ideal place to relax and unwind after a long day. The impressive, high specification kitchen with family dining area is at the rear of the property and overlooks the beautiful garden. The dining area benefits from classic double French doors leading out onto the garden and is perfect for entertaining on warm summer evenings. Catering for the busy, modern family, the utility room is accessed from the kitchen with a door leading out to the garden and a useful, separate downstairs cloakroom that maximises on space. The integral garage can be accessed from the hallway, making it ideal for storage.

    Upstairs there are four well-proportioned bedrooms and a stylish family bathroom. The stunning master bedroom benefits from a sophisticated dressing area with en-suite shower room, creating a glamorous retreat in your own home.

    Read Less

Property Features

  • Four double bedroom home ideal for couples and families alike
  • Spacious lounge with bay window and glazed panel double doors adding an extra touch of luxury to your home
  • Contemporary open plan kitchen and dining area with French doors to the rear garden
  • Master bedroom complete with your choice of modern Hammonds wardrobes and private ensuite
  • Family bathroom complete with shower and bath
  • Separate utility with access to guest WC
  • 10 year NHBC warranty giving you peace of mind
  • Single integral garage and double block paved driveway
  • Energy efficent home saving you money on your energy bills
  • The Harron specification includes leading brands with the latest Bosch kitchen appliances, contemporary Symphony kitchens, Franke kitchen sinks, Hansgrohe taps, Ideal Standard sanitaryware and sleek Hammonds wardrobes.
  • Stunning views

Quick mortgage affordability calculator

Tembo is an award-winning mortgage broker
Voted the UK’s Best Mortgage Broker by its customers in 2022 and 2023, Tembo is helping buyers discover their true mortgage affordability.

Tembo boosts its average customer’s maximum budget by £82,000. They do this by not only checking your affordability for over 100 lenders and standard products, but also for a range of budget-boosting specialist schemes.

Schemes include:
Ways for family to support using income, property or savings 
Private part buy part rent & government shared ownership 
Professional mortgages and 5.5x borrowing schemes
Sharia compliant home purchase plans
& so much more

Discover what your budget could be using our simple calculator, and afterwards access personalised interest rates through their full fact-find.

Your home may be repossessed if you do not keep up payments on your mortgage.

Property Floorplans

Click to expand floorplan image.

Other properties on this development

List Sort: 
The Brambles   Plot 181   Harron Homes
5 bedroom home for sale
5 Bedrooms
PART EXCHANGE AVAILABLE WITH EXTRAS INCLUDED!
The Brambles   Plot 200   Harron Homes
5 bedroom home for sale
5 Bedrooms
NEW RELEASE!
The Brambles   Plot 167   Harron Homes
5 bedroom home for sale
5 Bedrooms
NEW PRICE! SAVE OVER 40,000!
The Brambles   Plot 198   Harron Homes
5 bedroom home for sale
5 Bedrooms
BRAND NEW PRICE!
The Brambles   Plot 178   Harron Homes
4 bedroom home for sale
4 Bedrooms
NEW RELEASE!
The Brambles   Plot 109   Harron Homes
4 bedroom home for sale
4 Bedrooms
PART EXCHANGE AVAILABLE!
The Brambles   Plot 177   Harron Homes
4 bedroom home for sale
4 Bedrooms
4 bedroom house in Retford The Tonbridge is an attractive, four bedroom detached home, perfect for families looking for style ...
The Brambles   Plot 111   Harron Homes
4 bedroom home for sale
4 Bedrooms
PART EXCHANGE AVAILABLE!
The Brambles   Plot 213   Harron Homes
4 bedroom home for sale
4 Bedrooms
4 bedroom house in Retford The stylish Windsor, a four bedroom detached home with integral garage offers the best in modern da...
The Brambles   Plot 110   Harron Homes
4 bedroom home for sale
4 Bedrooms
NEW RELEASE!

Property Information

Price Details:
£356,000
Bedrooms:
4 bedrooms
Development:

Development Location

Individual savings and affordability may vary.

YOUR HOME MAY BE REPOSSESSED IF YOU DO NOT KEEP UP PAYMENTS ON YOUR MORTGAGE.

If you choose to use Tembo for mortgage advice, we may earn a commission from them for the introduction. This does not negatively impact the amount you'll pay for their service.

Tembo Money Limited (12631312) is a company registered in England and Wales with its registered office at 18 Crucifix Lane, London, SE1 3JW. Tembo is authorised and regulated by the Financial Conduct Authority under the registration number 952652.
© 2026 WhatHouse?
Click here to see your activities