LoginSubscribe to Alerts

David Wilson Homes | New Builds in The Paddocks 🏡 | WhatHouse

Do you want to get more information from David Wilson Homes
Call: 03333558471
Request Brochure
Request Details
Video Tour Available 

Property prices from £299,995

A prestigious new development of 3, 4 and 5 bedroom homes is now open in Morpeth. Set in a high-end, sought-after area, The Paddocks offers a collection of luxury homes with the perfect mix of countryside charm and modern convenience. With top schools, boutique shopping, green open spaces and fantastic transport links, Morpeth is an exceptional place to call home.

Quick mortgage affordability calculator

Tembo is an award-winning mortgage broker
Voted the UK’s Best Mortgage Broker by its customers in 2022 and 2023, Tembo is helping buyers discover their true mortgage affordability.

Tembo boosts its average customer’s maximum budget by £82,000. They do this by not only checking your affordability for over 100 lenders and standard products, but also for a range of budget-boosting specialist schemes.

Schemes include:
Ways for family to support using income, property or savings 
Private part buy part rent & government shared ownership 
Professional mortgages and 5.5x borrowing schemes
Sharia compliant home purchase plans
& so much more

Discover what your budget could be using our simple calculator, and afterwards access personalised interest rates through their full fact-find.

Your home may be repossessed if you do not keep up payments on your mortgage.

Development Tour

The Paddocks

Properties on this development

H9347213 - Woodlark
4 bedroom detached house for sale
Video Tour 
4 Bedrooms
CUL-DE-SAC POSITION. French doors gives access to the garden and there is also a separate utility. The bright and airy lounge, with an attractive bay window, is the perfect place to relax.

H9347228 - Woodlark
4 bedroom detached house for sale
Video Tour 
4 Bedrooms
This family home has a delightfully traditional feel from the outside, while inside, the LARGE OPEN-PLAN KITCHEN with its dining and family areas is designed very much for modern living.

H9347245 - Woodlark
4 bedroom detached house for sale
4 Bedrooms
Move in time for SUMMER with PART EXCHANGE | This family home has a delightfully traditional feel from the outside, while inside, the lARGE OPEN-PLAN KITCHEN with its dining and family areas is very ...

H9347227 - HURST
4 bedroom detached house for sale
4 Bedrooms
This four bedroom link-detached home has an OPEN-PLAN KITCHEN/DINING ROOM with FRENCH DOORS to the garden. There`s also a SPACIOUS LOUNGE to the front of your home .

H9347214 - Ingleby
4 bedroom detached house for sale
Video Tour 
4 Bedrooms
WEST FACING GARDEN. he Ingleby is a four bedroom home designed with family living in mind.

H9347234 - Ingleby
4 bedroom detached house for sale
Video Tour 
4 Bedrooms
The Ingleby is a four bedroom home designed with family living in mind. The ground floor features an OPEN-PLAN KITCHEN with dining and family areas and FRENCH DOORS lead out onto the SPACIOUS GARDEN.

H9347229 - Ingleby
4 bedroom detached house for sale
Video Tour 
4 Bedrooms
WEST FACING GARDEN. Essential utility space is discreetly tucked away in a corner of the kitchen and French doors give access to the rear garden.

H9347216 - Hadley
3 bedroom semi detached house for sale
Video Tour 
3 Bedrooms
This impressive three bedroom home is perfect for modern family living. The ground floor has a comfortable lounge and stylish kitchen with dining and family areas.

H9347244 - Greenwood
3 bedroom semi detached house for sale
Video Tour 
3 Bedrooms
PART EXCHANGE AVAILABLE. This three storey home features an OPEN-PLAN KITCHEN and living space with a glazed pod and FRENCH DOORS onto the garden.

H9347237 - Hadley
3 bedroom end terraced house for sale
Video Tour 
3 Bedrooms
This impressive home has a DUAL ASPECT LOUNGE and stylish kitchen with dining and family areas with FRENCH DOORS that open out onto the garden.

H9347243 - Greenwood
3 bedroom semi detached house for sale
Video Tour 
3 Bedrooms
Move in time for SUMMER with PART EXCHANGE available. This home has plenty of space for all the family. Downstairs there`s an OPEN-PLAN KITCHEN and dining room with FRENCH DOORS to the garden.

H9347236 - Hadley
3 bedroom semi detached house for sale
Video Tour 
3 Bedrooms
SEMI-DETACHED home with DOUBLE parking space. This impressive three bedroom home is perfect for modern family living.

H9347231 - Archford
3 bedroom semi detached house for sale
Video Tour 
3 Bedrooms
Step inside The Archford and discover a stylish OPEN-PLAN KITCHEN DINER - perfect for those who love to cook, complete with FRENCH DOORS opening onto your garden.

H9347238 - Archford
3 bedroom semi detached house for sale
Video Tour 
3 Bedrooms
POPULAR FIRST HOME | The Archford offers an OPEN-PLAN kitchen-diner with FRENCH DOORS out to your garden. The spacious lounge has plenty of room to relax with all the family.

H9347217 - Archford
3 bedroom semi detached house for sale
Video Tour 
3 Bedrooms
POPULAR FIRST HOME | The Archford offers an OPEN-PLAN kitchen-diner with FRENCH DOORS out to your garden. The spacious lounge has plenty of room to relax with all the family.

David Wilson Homes Whathouse? Awards *

  • 2019 - BEST PLACEMAKING - Silver award
  • 2018 - BEST PARTNERSHIP SCHEME - Gold award
  • 2016 - BEST EXTERIOR DESIGN - Bronze award
  • 2013 - BEST DEVELOPMENT - Silver award
  • 2013 - BEST DEVELOPMENT - Bronze award
David Wilson Homes winning development
* Awards do not always relate to specific developments.

Development Information

Price Details:
£299,995 - £484,995
Location:
Morpeth, Northumberland NE61
Property Details:
3 - 4 bedroom properties
Brochure:

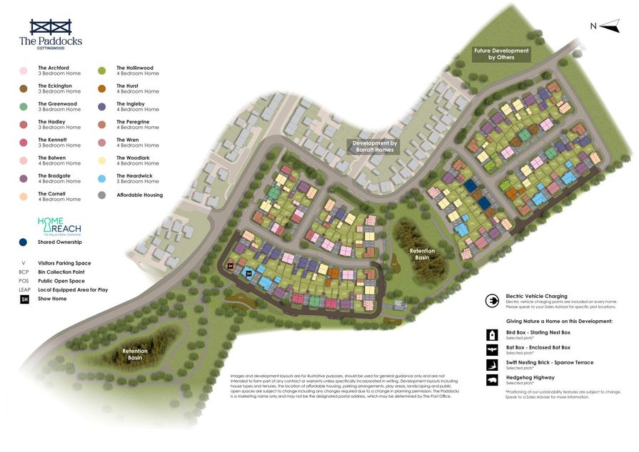
Development Site Plan

Development Location

Contact David Wilson Homes

Want to know more about The Paddocks from David Wilson Homes
David Wilson Homes will use this information to contact you.
ThankYou
Individual savings and affordability may vary.

YOUR HOME MAY BE REPOSSESSED IF YOU DO NOT KEEP UP PAYMENTS ON YOUR MORTGAGE.

If you choose to use Tembo for mortgage advice, we may earn a commission from them for the introduction. This does not negatively impact the amount you'll pay for their service.

Tembo Money Limited (12631312) is a company registered in England and Wales with its registered office at 18 Crucifix Lane, London, SE1 3JW. Tembo is authorised and regulated by the Financial Conduct Authority under the registration number 952652.
© 2026 WhatHouse?
Click here to see your activities