LoginSubscribe to Alerts

Barratt Homes | New Builds in Brook View at Pickford Gate 🏡 | WhatHouse

Do you want to get more information from Barratt Homes
Call: 03333558475

Property prices from £277,995

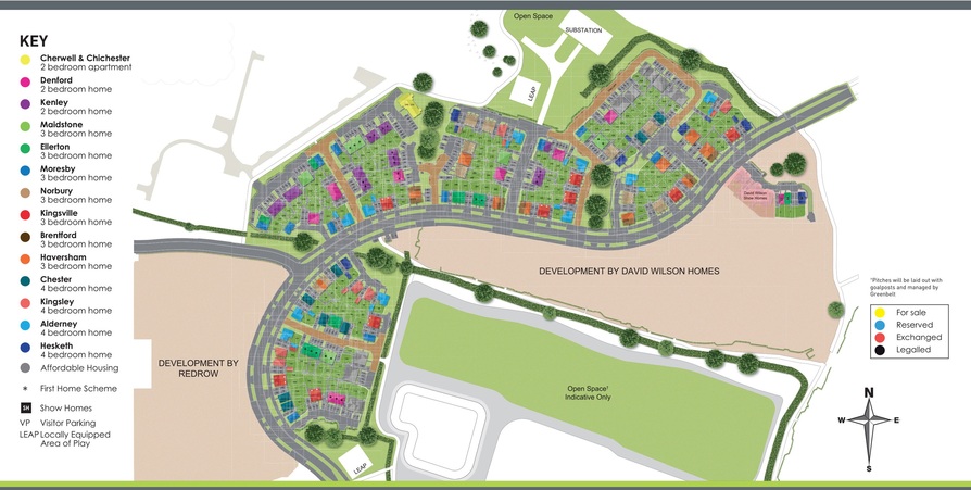
Host to a fine collection of 2, 3 & 4 bedroom homes, Brook View at Pickford Gate brings new residents closer to Coventry`s vibrant scene whilst enjoying a peaceful retreat away from the hustle and bustle of a busy city. Essential amenities are in proximity, including schools, shops and restaurants, whilst having excellent commuter opportunities available via the nearby A45, M42 and M6. What3words location - loose.exam.major

Quick mortgage affordability calculator

Tembo is an award-winning mortgage broker
Voted the UK’s Best Mortgage Broker by its customers in 2022 and 2023, Tembo is helping buyers discover their true mortgage affordability.

Tembo boosts its average customer’s maximum budget by £82,000. They do this by not only checking your affordability for over 100 lenders and standard products, but also for a range of budget-boosting specialist schemes.

Schemes include:
Ways for family to support using income, property or savings 
Private part buy part rent & government shared ownership 
Professional mortgages and 5.5x borrowing schemes
Sharia compliant home purchase plans
& so much more

Discover what your budget could be using our simple calculator, and afterwards access personalised interest rates through their full fact-find.

Your home may be repossessed if you do not keep up payments on your mortgage.

Properties on this development

H9336361 - ALDERNEY
4 bedroom detached house for sale
4 Bedrooms
**HOME TO SELL? MOVE WITH 105% PART EXCHANGE AND STAMP DUTY PAID - SAVE 15,524**. This detached family home is light and airy with two sets of French doors leading you to the rear garden.

H9336359 - Hesketh
4 bedroom detached house for sale
4 Bedrooms
** 24,374 DEPOSIT BOOST AND FLOORING INCLUDED*** The Hesketh is a spacious four bedroom family home designed over three floors.

H9336360 - Kingsley
4 bedroom detached house for sale
4 Bedrooms
**105% PART EXCHANGE AND STAMP DUTY PAID - SAVING YOU 14,249**. This home is ideal for growing families. Oversized windows and French doors make the ground floor of this home bright and airy.

H9336356 - Brentford
3 bedroom semi detached house for sale
3 Bedrooms
***SAVE 22,374 WITH DEPOSIT BOOST, FLOORING INCLUDED AND WARDROBES TO ALL BEDROOMS*** The Brentford is a bright family home designed over three floors. .

H9336350 - Chester
4 bedroom detached house for sale
4 Bedrooms
***105% PART EXCHANGE AND STAMP DUTY PAID AVAILABLE*** The Chester is an ideal family home filled with light through oversized windows. A brilliant space to entertain friends and family.

H9336355 - Haversham
3 bedroom terraced house for sale
3 Bedrooms
** 21,000 DEPOSIT BOOST, FLOORING INCLUDED UPGRADED KITCHEN AND WARDROBES INCLUDED TO BED 1 & 2**. The first floor features a bright lounge and main bedroom with it`s own en suite.

H9336349 - Norbury
3 bedroom semi detached house for sale
3 Bedrooms
*** 20,000 DEPOSIT BOOST AND FLOORING INCLUDED*** Our Norbury is a three bedroom home. You will also have a modern kitchen with a separate cloakroom.

H9336358 - Kingsville
3 bedroom semi detached house for sale
3 Bedrooms
**KEY WORKER DEPOSIT CONTRIBUTION SCHEME AVAILABLE AND FLOORING**. Discover the best of THREE-STOREY LIVING. Enjoy family meal times and entertaining space in your OPEN-PLAN KITCHEN & DINING SPACE.

H9336333 - Denford
2 bedroom semi detached house for sale
2 Bedrooms
**SAVE 13,899 WITH DEPOSIT BOOST, PLUS FLOORING AND FURNITURE PACKAGE INCLUDED - RESERVE FOR 99*** The free flowing living space in the Denford created a flexible terraced home, ideal for first-time ...

Barratt Homes Whathouse? Awards *

  • 2019 - BEST PLACEMAKING - Silver award
  • 2017 - BEST PARTNERSHIP SCHEME - Silver award
  • 2016 - BEST LARGE HOUSEBUILDER - Bronze award
  • 2015 - SUSTAINABLE DEVELOPER OF THE YEAR - Gold award
  • 2015 - BEST LARGE HOUSEBUILDER - Bronze award
  • 2014 - BEST SUSTAINABLE DEVELOPMENT - Gold award
Barratt Homes winning development
* Awards do not always relate to specific developments.

Development Information

Price Details:
£277,995 - £510,495
Location:
Allesley, West Midlands CV5 
Property Details:
2 - 4 bedroom properties
Brochure:

Development Site Plan

Development Location

Contact Barratt Homes

Want to know more about Brook View at Pickford Gate from Barratt Homes
Barratt Homes will use this information to contact you.
ThankYou
Individual savings and affordability may vary.

YOUR HOME MAY BE REPOSSESSED IF YOU DO NOT KEEP UP PAYMENTS ON YOUR MORTGAGE.

If you choose to use Tembo for mortgage advice, we may earn a commission from them for the introduction. This does not negatively impact the amount you'll pay for their service.

Tembo Money Limited (12631312) is a company registered in England and Wales with its registered office at 18 Crucifix Lane, London, SE1 3JW. Tembo is authorised and regulated by the Financial Conduct Authority under the registration number 952652.
© 2026 WhatHouse?
Click here to see your activities