LoginSubscribe to Alerts

3 bedroom semi detached house in Edwinstowe

Do you want to get more information from David Wilson Homes
Call: 03333558473

Thoresby Vale by David Wilson Homes

GREENWOOD
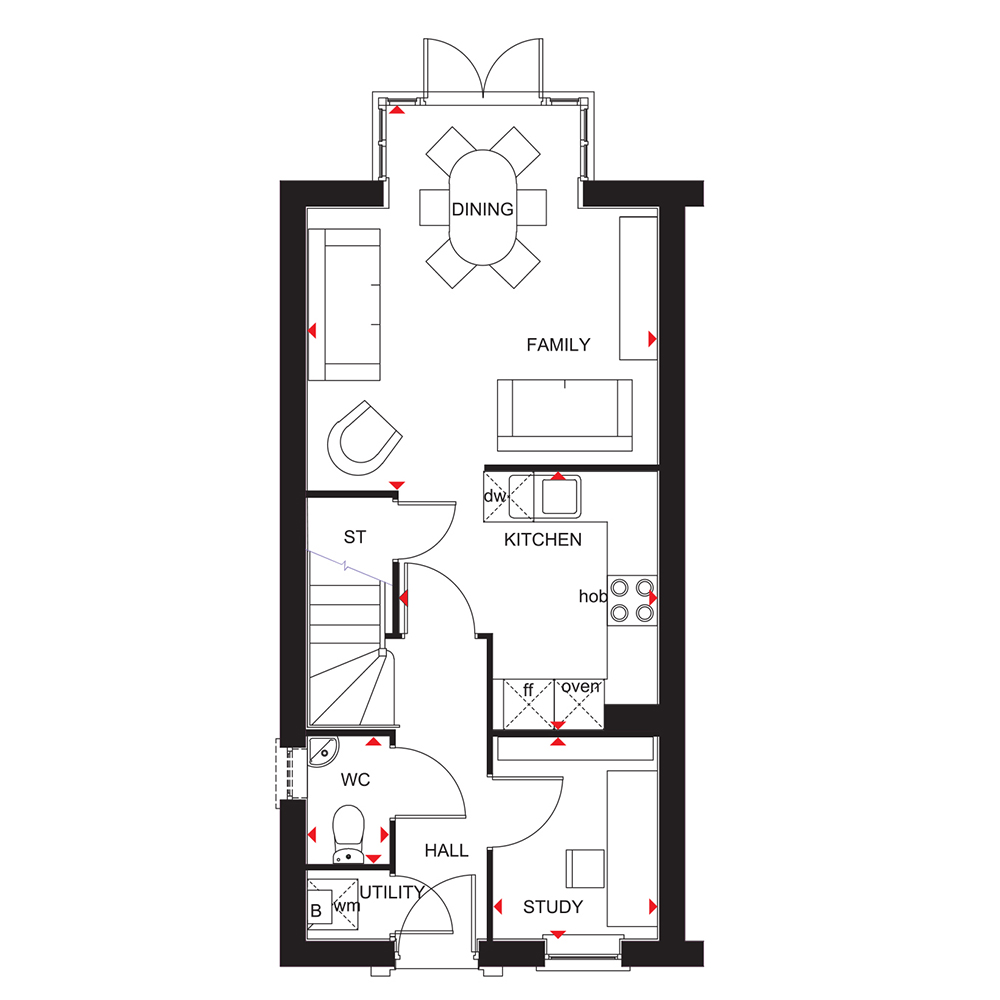
SAVE UP TO 25,043 including 5% towards your deposit worth 15,249 OR sell your home with our Part Exchange scheme | Upgraded kitchen package & flooring included throughout This three bedroom home has space across three floors. You`ll find an open-plan kitchen with a bright glazed bay and French doors onto the west-facing garden. There is also a dedicated home office, a cloakroom and plenty of storage. Upstairs is a spacious lounge and main bedroom with en suite. On the top floor you`ll find two further double bedrooms and a family bathroom. Detached garage & private driveway parking for 2 cars. Plot 122 | The Greenwood | Thoresby Vale Nestled in the heart of Sherwood Forest, Thoresby Vale is a brand-new community in the town of Edwinstowe. You`ll be surrounded by a 350-acre county park, offering plenty of open space for walking, as well as two play areas on the development. You`ll be close to all your local amenities, excellent transport links and OFSTED rated `Good` schools.

Property Features

  • 5% towards your deposit worth £15,249
  • OR sell your home with Part Exchange
  • Upgraded kitchen package worth £2,285
  • Flooring included throughout £7,509
  • West-facing garden
  • Open-plan kitchen/dining & family area
  • Dedicated home office
  • Spacious lounge
  • 3 double bedrooms - main with en suite
  • Detached garage & private driveway parking for 2 cars

Quick mortgage affordability calculator

Tembo is an award-winning mortgage broker
Voted the UK’s Best Mortgage Broker by its customers in 2022 and 2023, Tembo is helping buyers discover their true mortgage affordability.

Tembo boosts its average customer’s maximum budget by £82,000. They do this by not only checking your affordability for over 100 lenders and standard products, but also for a range of budget-boosting specialist schemes.

Schemes include:
Ways for family to support using income, property or savings 
Private part buy part rent & government shared ownership 
Professional mortgages and 5.5x borrowing schemes
Sharia compliant home purchase plans
& so much more

Discover what your budget could be using our simple calculator, and afterwards access personalised interest rates through their full fact-find.

Your home may be repossessed if you do not keep up payments on your mortgage.

Property Floorplans

Click to expand floorplan image.

Property Tour

Virtual Tour

Contact David Wilson Homes

Want to know more about  from 
 will use this information to contact you.
ThankYou

Other properties on this development

List Sort: 
H8809354 - Lichfield
5 bedroom detached house for sale
5 Bedrooms
IDEAL FOR LARGE FAMILIES | This double fronted home has an impressive entrance hall, leading to a comfortable lounge, dining room, study and kitchen with breakfast, family and utility areas, opening ...
H8809356 - Moreton
5 bedroom detached house for sale
5 Bedrooms
Key Worker? Ask about our deposit contribution scheme | NEW PHASE | Located on a private drive | Featuring two sets of French doors onto the garden from the spacious lounge and open-plan kitchen diner.
H8809302 - Holden
4 bedroom detached house for sale
4 Bedrooms
NEW PHASE | Overlooking open space & located on a private drive | The Holden is a detached four bedroom home. There is also an elegant bay-fronted lounge and a home office.
H8066118 - Avondale
4 bedroom detached house for sale
4 Bedrooms
Show home available to view. The generous lounge features French doors that lead to the garden. The study is great for those working from home.
H8809360 - Exeter
4 bedroom detached house for sale
4 Bedrooms
Ask about your Key Worker Deposit Contribution scheme | NEW PHASE | This Exeter features an open-plan kitchen-diner with French doors to your garden with a handy utility room.
H8809359 - Meriden
4 bedroom detached house for sale
4 Bedrooms
Located on a private drive | The Meriden is a bright detached home thanks to an attractive bay-fronted lounge and glazed bay in the open-plan family kitchen-diner leading to the garden.
H8809355 - Ashington
4 bedroom detached house for sale
4 Bedrooms
NEW PHASE | Downstairs you`ll find your spacious dual-aspect lounge with French doors out to your garden, a separate dining room, and your open-plan kitchen with a second set of French doors.
H806699 - Eckington
3 bedroom detached house for sale
3 Bedrooms
Key Worker? Ask about our deposit contribution scheme | Detached home, an open-plan kitchen. French doors onto the west-facing garden, a separate utility room and cloakroom, as well as spacious lounge.
H8066103 - GREENWOOD
3 bedroom semi detached house for sale
3 Bedrooms
House to sell? Ask about our Part Exchange scheme | Upgraded kitchen package included | VIEW OUR SHOW HOME | This three bedroom home has space across three floors.
H806685 - ARCHFORD
3 bedroom terraced house for sale
3 Bedrooms
10,000 towards your deposit and receive an upgraded kitchen package worth 2,285. A spacious lounge offers the ideal space to relax in the evening. 2 parking spaces.
H8066107 - Archford
3 bedroom semi detached house for sale
3 Bedrooms
SAVE OVER 19,000, including 5% towards your deposit worth 12,249 and receive an upgraded kitchen and flooring package when you reserve.
H806683 - ARCHFORD
3 bedroom semi detached house for sale
3 Bedrooms
Upgrades worth 7,285, including an upgraded kitchen and flooring throughout your new home. A spacious lounge offers the ideal space to relax in the evening. 2 parking spaces.
News stories about David Wilson Homes

Property Information

Price Details:
£304,995
Bedrooms:
3 bedrooms
Development:
Brochure:

Development Location

Individual savings and affordability may vary.

YOUR HOME MAY BE REPOSSESSED IF YOU DO NOT KEEP UP PAYMENTS ON YOUR MORTGAGE.

If you choose to use Tembo for mortgage advice, we may earn a commission from them for the introduction. This does not negatively impact the amount you'll pay for their service.

Tembo Money Limited (12631312) is a company registered in England and Wales with its registered office at 18 Crucifix Lane, London, SE1 3JW. Tembo is authorised and regulated by the Financial Conduct Authority under the registration number 952652.
© 2025 WhatHouse?
Click here to see your activities