LoginSubscribe to Alerts

3 bedroom semi detached house in Yate

Do you want to get more information from David Wilson Homes
Call: 03301272523
Development Brochure
Request Details
Video Tour Available 

Ladden Garden Village by David Wilson Homes

Greenwood
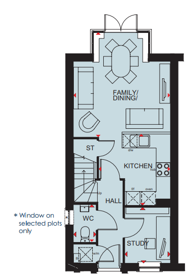
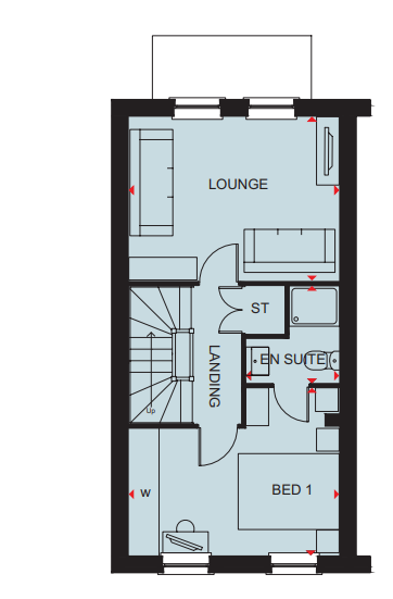
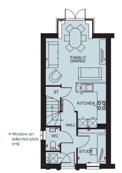
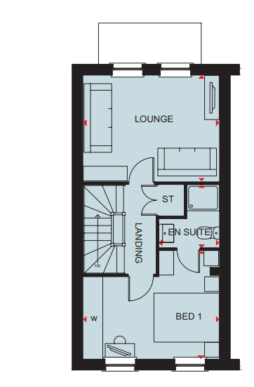
Brand new home with home office and PHOTOVOLTAIC SOLAR PANELS. Comes with an NHBC Warranty and insurance policy. Plot 17 | The Greenwood | Ladden Garden Village, Yate | David Wilson Homes. This home has an open plan kitchen with glazed bay and French doors to the garden together with a study. A cloakroom and some understairs storage completes the ground floor. Upstairs, over two floors you`ll find the lounge, an en suite main bedroom, two further double bedrooms and a family bathroom. Comes with two parking spaces. PEACE OF MIND WHEN BUYING NEW: ENERGY SAVING technologies included, meaning you could enjoy lower bills. COMPREHENSIVE WARRANTY as standard for added reassurance. Need help with your mortgage? We can put you in touch with a New Build MORTGAGE BROKER.

Property Features

  • Semi detached home
  • Photovoltaic solar panels
  • 2 parking spaces
  • Open plan living space
  • Home office
  • 3 double bedrooms

Quick mortgage affordability calculator

Tembo is an award-winning mortgage broker
Voted the UK’s Best Mortgage Broker by its customers in 2022 and 2023, Tembo is helping buyers discover their true mortgage affordability.

Tembo boosts its average customer’s maximum budget by £82,000. They do this by not only checking your affordability for over 100 lenders and standard products, but also for a range of budget-boosting specialist schemes.

Schemes include:
Ways for family to support using income, property or savings 
Private part buy part rent & government shared ownership 
Professional mortgages and 5.5x borrowing schemes
Sharia compliant home purchase plans
& so much more

Discover what your budget could be using our simple calculator, and afterwards access personalised interest rates through their full fact-find.

Your home may be repossessed if you do not keep up payments on your mortgage.

Property Floorplans

Click to expand floorplan image.

Property Tour

Virtual Tour

Contact David Wilson Homes

Want to know more about Ladden Garden Village from David Wilson Homes
David Wilson Homes will use this information to contact you.
ThankYou

Other properties on this development

List Sort: 
H7836139 - Henley
5 bedroom detached house for sale
5 Bedrooms
Move in for winter. Part Exchange available. Brand new home next to OPEN SPACE with an UPGRADED KITCHEN and flooring included worth over 20,000.
H7836141 - Bradgate
4 bedroom detached house for sale
4 Bedrooms
Move in for winter. Got a home to sell? Part Exchange available. Brand new home with UPGRADED KITCHEN and flooring worth over 13,500, backing onto GREEN OPEN SPACE.
H7836145 - Bradgate
4 bedroom detached house for sale
4 Bedrooms
Move in for winter. Got a home to sell? Part Exchange available. Brand new home with an UPGRADED KITCHEN and flooring worth over 19,000.
H860418 - Hertford
4 bedroom detached house for sale
4 Bedrooms
Brand new home with an UPGRADED KITCHEN and photovoltaic solar panels. Plot 18 | The Hertford | Ladden Garden Village, Yate | David Wilson Homes. The bay fronted lounge is perfect for relaxing in.
H7835118 - Meriden
4 bedroom detached house for sale
4 Bedrooms
MOVE IN THIS WINTER AND SAVE OVER 40,000. Brand new home with WEST FACING GARDEN in a cul-de-sac surrounded by open space. A spacious bay fronted lounge and a utility room completes the ground floor.
H860433 - Ingleby
4 bedroom detached house for sale
4 Bedrooms
Brand new home with PHOTOVOLTAIC SOLAR PANELS. Comes with an NHBC warranty and insurance policy. Plot 33 | The Ingleby | Ladden Garden Village, Yate | David Wilson Homes.
H860415 - Hadley
3 bedroom detached house for sale
3 Bedrooms
Brand new home with PHOTOVOLTAIC SOLAR PANELS. Comes with an NHBC Warranty and insurance policy. Plot 15 | The Hadley | Ladden Garden Village, Yate | David Wilson Homes.
H860413 - Archford
3 bedroom semi detached house for sale
3 Bedrooms
KEY WORKER? WE`LL CONTRIBUTE UP TO 17,500. Brand new home with UPGRADED KITCHEN worth over 2,000, available to move into for spring.
News stories about David Wilson Homes

Property Information

Price Details:
£400,000
Bedrooms:
3 bedrooms
Brochure:

Development Location

Individual savings and affordability may vary.

YOUR HOME MAY BE REPOSSESSED IF YOU DO NOT KEEP UP PAYMENTS ON YOUR MORTGAGE.

If you choose to use Tembo for mortgage advice, we may earn a commission from them for the introduction. This does not negatively impact the amount you'll pay for their service.

Tembo Money Limited (12631312) is a company registered in England and Wales with its registered office at 18 Crucifix Lane, London, SE1 3JW. Tembo is authorised and regulated by the Financial Conduct Authority under the registration number 952652.
© 2025 WhatHouse?
Click here to see your activities